Im Nirgendwo
Energie-autarke Bauernhaus Restaurierung

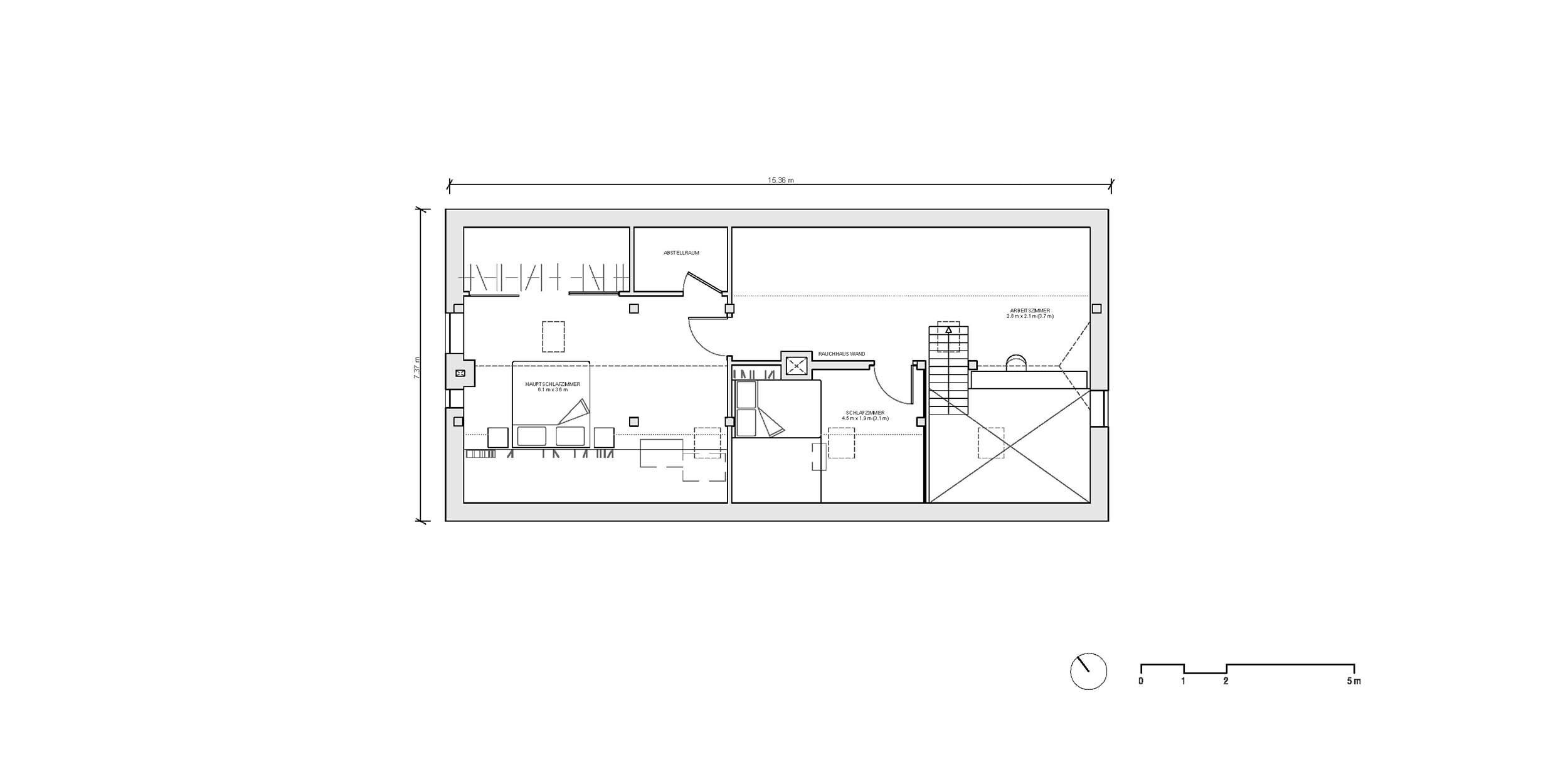
Versiegelt und eingehüllt während der ehemaligen DDR Zeit wird dieses traditionelle Bauernhaus aus dem 19. Jahrhundert zu neuem Leben erweckt, dank einer Restaurierung die seine Geschichte zelebriert. Die Arbeiten legen die ursprüngliche Konstruktion frei und stellen sie aufgearbeitet wieder her, einschließlich des detaillierten Backsteines außen und altes Fachwerkes innen, und ergänzen mit modernsten, nachhaltigen Eingriffen. Solardachziegel, im Beton-Ziegel Satteldach integriert und mit einem geothermischen System gekoppelt, erzielen einen Netto-Null-Energieverbrauch. Der offene und in Teilen zweigeschossige Raum bietet eine moderne Raumaufteilung und legt gleichzeitig durch die Fachwerkgliederung Spuren des ursprünglichen Grundrisses frei. Dieses architektonische Palimpsest bewahrt die Geschichten der Vergangenheit und verknüpft sie gleichzeitig mit den Ansprüchen der Gegenwart und Zukunft.

Standort – MV, Deutschland
Typologie – Einfamilienhaus, 200 qm
Bauherren – Private Kunden
Status – Fertigstellung Dezember 2020
Dienstleistungen – Leistungsphasen 1-9 + Bauleitung
Kollaborationspartner – Sierra Boaz Cobb

Credits:
Fotos von
Pujan Shakupa
Solardach Stringplan von SolteQ Europe GmbH

 THE PROCESS.

INNOVATION AND DETAIL.

Previous
Previous

Pavillon Anbau und Ausstellung

Next
Next

Swarm Modulares Wohngemeinschaftshaus